Ova nekretnina je prodata. Pogledajte našu trenutnu ponudu.

Prodaja,3.0 stan,Hadzipopovac,Palilula

BISTRICKA

60m 2
3.0
2.500 €/m2 ; 150.000 €

Najvažnije

Transakcija
Renta
Vrsta objekta
STAN
Godina gradnje
2008
Sprat
3/3
Struktura
3.0
Budite Prvi! Kliknite ovde i Pozovite ODMAH ️ 063/867-3560

O ovoj nekretnini

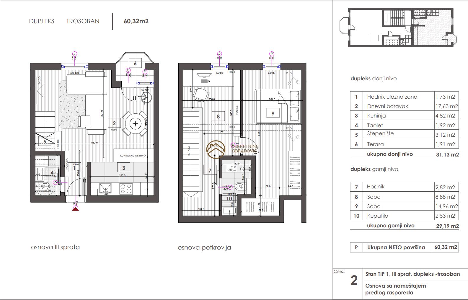
U prilici smo da vam ponudimo dvoetazni stan od 60m2 u zgradi novije gradnje u Bistrickoj ulici. Lokacijski stan ima odlicnu poziciju: 1,9km od Trga Republike, 10 minuta setnje do Tasmajdanskog parka i Palilulske pijace. U kraju se nalaze tri osnovne skole, nekoliko vrtica, Dom zdravlja, srednje skole, odlicna povezanost gradskog saobracaja sa svim delovima grada.
Prvi nivo sacinjava dnevno-trpezarijski deo sa kuhinjom i toaletom, a na gornjem nivou nalaze se dve spavace sobe i kupatilo.
Na istom spratu prodaje se veci stan povrsine 79m2, od istog vlasnika, tako da ukoliko postoji potreba mozete kupiti oba!
Dodatni prostor za oba stana je ugradni ormar od 6m2 koji se nalazi u hodniku na spratu.
Stan je uknjizen sa urednom dokumentacijom.


Od prostorija, ova nekretnina poseduje: Prvi nivo: dnevni boravak sa kuhinjsko-trpezarijskim delom, toalet. Drugi nivo: dve spavace sobe, kupatilo.

Dodatna dokumentacija: Uknjizen

Tlocrt stana


Dodatno

Internet
Klima
Godina gradnje: 2008
Pozovite nas za ovaj stan




Slične nekretnine