Eksluzivni poslovni prostor u Knez Mihajlovoj ulici

VUKA KARADZICA

270m 2
9.0
20 €/m2 ; 5.500 €

Najvažnije

Transakcija
Renta
Vrsta objekta
LOKAL/P.P.
Godina gradnje
1900
Sprat
3/5
Struktura
9.0
Vrsta grejanja
cg
Lift
da
Novogradnja
Budite Prvi! Kliknite ovde i Pozovite ODMAH ️ 063/867-3560

O ovoj nekretnini

Izdajemo izuzetan poslovni prostor, u centru Beograda,na atraktivnoj lokaciji u Knez Mihajlovoj ulici.
Pogodan je za firme raznih profila koje imaju vise zaposlenih.
Jugoistocno je orijentisan i vrlo svetao.
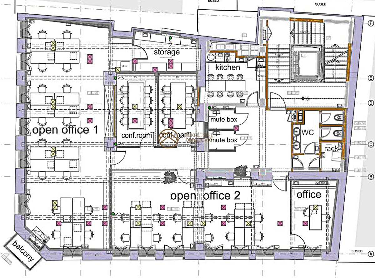
Prostor se sastoji od dve velike prostorije za desetak i vise zaposlenih,dve sale za sastanke,
Izdvojene kancelarije,dve izolovane prostorije(mute box),kuhinje,dva toaleta,ostave…
U blizini, na par minuta hoda su javne garaze (Obilicev venac i Rajiceva)
kao i linije gradskog prevoza (Studentski trg, Terazije i Zeleni venac),
restorani,kafici,banke i sve ostalo sto pruza centralna pozicija velikog grada.
Prostor je trenutno u zavrsnoj fazi renoviranja.Uslov primopredaje po dogovoru.
Cena je bez pdv-a


Agencijska provizija 50% od prvog zakupa.

Od prostorija, ova nekretnina poseduje: Dve velike prostorije otvorenog tipa svaka za maksimalno 12 do 14 osoba, dve sale za sastanke, kancelarija, ostava, kuhinja, dva toaleta, dve prostorije(mute box).

Tlocrt stana


Dodatno

Internet
Klima
Godina gradnje: 1900
Pozovite nas za ovaj stan




Slične nekretnine

Agent

063/867-3560, 011/409-3903