Ova nekretnina je prodata. Pogledajte našu trenutnu ponudu.

Prodaja,3.0 stan,Hadzipopovac,Palilula

BISTRICKA

79m 2
3.0
2.500 €/m2 ; 197.500 €

Najvažnije

Transakcija
Renta
Vrsta objekta
STAN
Godina gradnje
2008
Sprat
3/3
Struktura
3.0
Budite Prvi! Kliknite ovde i Pozovite ODMAH ️ 063/867-3560

O ovoj nekretnini

Prodajemo dvoetazni, uknjizen stan, od 79m2 u zgradi novije gradnje,
u mirnoj ulici. 
Lokacijski izuzetno dobro pozicioniran, 1,9 km od Trga Republike, 10 minuta
setnje do Tasmajdanskog parka i Palilulske pijace. Neposredna blizina tri
osnovne skole, vrtica, Doma zdravlja.
Od istog vlasnika mozete kupiti manji stan od 60m2 na istom spratu.
Sprat na kome se nalaze ova dva stana ima u hodniku ugradni plakar od 6m2,
a ceo sprat je zasticen dodatnim vratima koja se zakljucavaju.
Uredna dokumentacija!

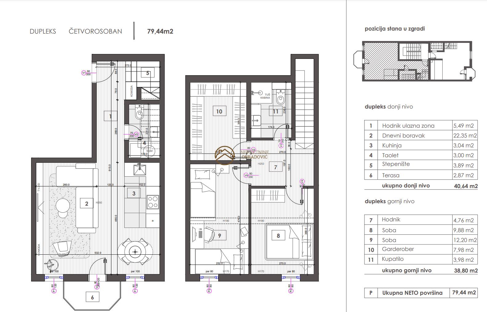
Od prostorija, ova nekretnina poseduje: Prva etaza: hodnik, prostran dnevni boravak sa trpezarijsko- kuhinjskim delom i izlazom na lodju, toalet. Iz hodnika vode stepenice na gornju etazu tako da ne oduzimaju prostor dnevne sobe. Druga etaza: tri spavace sobe i kupatilo.

Dodatna dokumentacija: Uknjizen

Tlocrt stana


Dodatno

Internet
Klima
Godina gradnje: 2008
Pozovite nas za ovaj stan




Slične nekretnine